产品中心

联系方式

地 址:北京市大兴区榆垡镇南十路9号三层3151室

咨询热线:13146836777  

Q  Q:2821767196

邮 箱:[email protected]

网 址:

破袋布料机

您的当前位置: 首 页 >> 产品中心 >> 生活垃圾处理设备

破袋布料机

  • 所属分类:生活垃圾处理设备

  • 点击次数:
  • 发布日期:2017/08/10
  • 在线询价
详细介绍

设备功能:
随着人民生活水平的日益提高,垃圾袋装化的趋势日益明显。而对于综合垃圾处理线而言,袋装的垃圾将大大影响其处理效率和效果。为了解决这一难题,我公司自主研发了破袋机系列设备,可最大限度的破开原生垃圾中的袋装垃圾的包装塑料袋,破袋率达90%以上。本设备被广泛应用于我公司设计的各条垃圾综合处理线中,受到广大客户的好评。

破袋机性能描述:

该产品具有破袋和布料的双重功能,进入破袋机的物料立即通过旋转动刀将物料带到动刀与定刀之间。动刀部由电机减速机或液压马达驱动做旋转运动,定刀成半圆弧带齿刀结构与动刀圆弧配合,其间隙由液压缸或机械弹簧控制。工作时的间隙是保证动刀旋转不与定刀发生碰创,又将袋装垃圾破开,达到垃圾与塑料袋分离。当被破袋物料一次投入过多(或太大时)定刀受力改变,当外力大于液压缸推力时定刀做转动与动刀的间隙随之改变,此时向大的间隙改变,保证工作正常进行。如果袋装物料中误装建筑垃圾时,此时动刀与定刀的受力变大,定刀由液压系统改变间隙保证刀具不被破坏,保证工作正常进行。

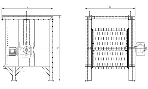
破袋布料机CAD图:

破袋布料机
破袋布料机外形尺寸及技术规格表:
破袋布料机外形尺寸及技术规格表

相关标签:生活垃圾处理设备,破袋布料机

上一篇:人工分拣平台
下一篇:鳞板式输送机

最近浏览:

在线客服
分享 一键分享
欢迎给我们留言
请在此输入留言内容,我们会尽快与您联系。
姓名
联系人
电话
座机/手机号码
邮箱
邮箱
地址
地址

京公网安备 11011502004214号